新築一戸建住宅
「利回り」は、当該不動産の1年間の予定賃料収入の不動産取得対価に対する割合であり、公租公課その他当該物件を維持するために必要な費用の控除前のものです。
また、予定賃料収入が確実に得られる事を保証するものではありません。

事前に必ず予約してください
◆現地案内会&個別相談会 開催中◆
事前予約でゆっくり見学可。平日対応、資金計画の無料相談も充実。
転職したて、勤続年数が短い方、自営業の方等でも住宅ローン相談可能。
住まい選びを総合サポートします。
0800-919-0723
営業時間:10:00~18:00 / 定休日:水曜日
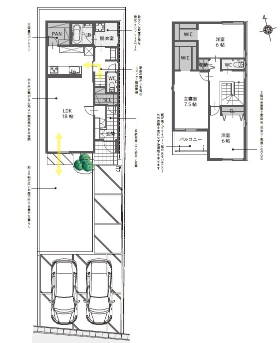
ウォークインクローゼット2か所やシューズインクローク、食品庫など収納充実してます!
小学校、歯科、皮膚科徒歩圏内に有り☆

※地図上の物件位置は近隣に物件が所在することを表すものであり、実際の物件所在地とは異なる場合がございます。
0800-919-0723
営業時間:10:00~18:00 / 定休日:水曜日
| 所在地 | 愛知県稲沢市大塚北5丁目 | ||
|---|---|---|---|
| 交通 |
名鉄名古屋本線 「国府宮」駅
徒歩24分 名鉄名古屋本線 「奥田」駅 徒歩25分 東海道本線 「稲沢」駅 徒歩40分 |
||
| 価格 | 3,980万円 | ||
| 間取り |
3LDK
LDK 18.0帖 1室 / 洋室 7.5帖 1室 / 洋室 6.0帖 2室 / |
||
| 築年月(築年数) | 2025年 2月(新築) | 主要採光面 | 南 |
| 建物構造 | 木造 | 階数 | 2階建 |
| 私道負担面積 | セットバック | ||
| 接道状況 | 一方 (南側 公道4.5m) | ||
| 建ぺい率/容積率 | 60%/ 200% | 土地権利 | 所有権 |
| 地目 | 宅地 | 地勢 | |
| 土地の権利形態 | |||
| 都市計画 | 市街化調整区域 | 用途地域 | 指定なし |
| その他法令上の制限 | 文化財保護法/日影制限有/道路斜線・隣地斜線、面積制限、高さ規制 | ||
| 国土法届出 | 不要 | 取引態様 | 仲介 |
| 現況 | 完成済み | 引渡し | 相談 |
| 駐車場 | 空き台数:2台 、 有 | ||
| 設備条件 | 浄化槽 / 公営水道 / 都市ガス / オープンハウス / システムキッチン / 対面式キッチン / トイレ2ヶ所 / ウォークインシューズクロゼット / 食品庫 | ||
| その他条件 | |||
| 備考 |
◆◇◆現地案内会&個別相談会 開催中◆◇◆ 【日程】公開中 【時間】10:00~17:00 【予約】WEB / 電話 事前予約制でゆっくり見学可能。 短時間のご案内もOK。 「少し見てみたいだけ」「詳しく話を聞きたい」どちらも対応します。 【見学受付窓口】 フリーコール:0800-919-0723(通話料無料) 【見学のポイント】 ・室内の広さ・収納・家事導線をチェック ・陽当たり・前面道路・周辺環境を確認 ・気になる点はその場でスタッフに相談 【見学の注意点】 ・1組ずつのご案内のため、事前予約を推奨 ・平日も見学可能。気軽にお問い合わせください 【お問い合わせ方法】 ・見学予約:「見学予約」ボタンから日程を選択 ・電話:「電話マーク」をタップで発信 ・資料請求:「資料請求」ボタンから詳細情報を入手 ◆住宅ローン無料相談受付中◆ ・転職したて、勤続年数が短い方 ・車のローンや他の借入がある方 ・自営業の方 ・諸費用や追加工事費用を住宅ローンに組込みたい方 住宅ローンアドバイザーが最適な資金計画をご提案。 他社で審査が難しかった方もぜひご相談ください。 ◆中古物件×リフォームで理想の住まいを実現◆ 新築に加え、「中古物件×リフォーム」で理想の住まいを実現できます。 リフォームでデザイン性や機能性をアップし、あなただけの特別な空間を作れます。 ・新築戸建てから中古戸建、マンションまで対応 ・キッチンやバスルーム、収納の増設など対応 ・予算に合わせたプランで理想の住まいを実現 気になる方は、お気軽にご連絡ください。 |
||
| 周辺の学校 | |||
| 建築確認番号 | 物件番号 | 99812216 | |
| 情報公開日 | 2026年1月12日 | 次回更新予定日 | 2026年1月26日 |
| 取引条件の有効期限 | 2026年1月26日 | ||
| 取扱い会社 |
株式会社ブルーボックス 〒492-8145 愛知県稲沢市正明寺2丁目16-4 国土交通大臣(7)第5463号 |
||
0800-919-0723
営業時間:10:00~18:00 / 定休日:水曜日
| 所在地 | 物件の住所を表示。(詳細住所は表示していない場合もある) | ||
|---|---|---|---|
| 交通 | 物件(部屋)の沿線駅・バス停を表示。(複数駅・バス停の利用が可能な場合は最大3件まで) | ||
| 間取り/詳細 | 数字は居室数を表示。LDKはそれぞれ「リビング」「ダイニング」「キッチン」、S(納戸)とは「納戸」「サービスルーム」「マルチルーム」「フリールーム」など建築基準法第28条に適合していないため、居室と認められない納戸その他の部分を表す。 | ||
| 価格 | 販売されている住戸の価格を表示。仲介手数料は含まない。 | ||
| 管理費 | 共同住宅の設備その他共用部分の維持および管理をするために必要な費用を表示。 | ||
| 修繕積立金 | 共用部分の修繕のために積立てる金額を表示。 | ||

【間取り】