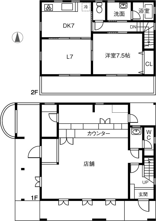
店付住宅
「利回り」は、当該不動産の1年間の予定賃料収入の不動産取得対価に対する割合であり、公租公課その他当該物件を維持するために必要な費用の控除前のものです。
また、予定賃料収入が確実に得られる事を保証するものではありません。

◆周辺環境充実してます!◆店舗として使用する場合許可要

※地図上の物件位置は近隣に物件が所在することを表すものであり、実際の物件所在地とは異なる場合がございます。
0800-919-0723
営業時間:10:00~18:00 / 定休日:水曜日
| 所在地 | 愛知県稲沢市平細工蔵町 | ||
|---|---|---|---|
| 交通 |
名鉄尾西線 「山崎」駅
徒歩32分 名鉄尾西線 「玉野」駅 徒歩34分 名鉄尾西線 「森上」駅 徒歩36分 |
||
| 価格 | 1,850万円 | ||
| 築年月(築年数) | 2003年 5月(築22年) | 主要採光面 | |
| 建物構造 | 木造 | 階数 | 2階建 |
| 私道負担面積 | セットバック | ||
| 建物面積 | 111.89㎡ | 土地面積 | 391.01㎡ |
| 接道状況 | 一方 (西側9.0m) | ||
| 建ぺい率/容積率 | 60%/ 200% | 土地権利 | 所有権 |
| 地目 | 宅地 | 地勢 | |
| 土地の権利形態 | |||
| 都市計画 | 市街化調整区域 | 用途地域 | 指定なし |
| その他法令上の制限 | |||
| 国土法届出 | 不要 | 取引態様 | 一般媒介 |
| 現況 | 空家 | 引渡し | 相談 |
| 駐車場 | |||
| 設備条件 | 公営水道 / プロパンガス / 室内洗濯機置場 / 電気有 / ガスコンロ / 追焚機能浴室 | ||
| その他条件 | |||
| 備考 | |||
| 周辺の学校 | |||
| 建築確認番号 | 物件番号 | 98405319 | |
| 情報公開日 | 2025年11月9日 | 次回更新予定日 | 2025年11月23日 |
| 取引条件の有効期限 | 2025年11月23日 | ||
| 取扱い会社 |
株式会社ブルーボックス 〒492-8145 愛知県稲沢市正明寺2丁目16-4 国土交通大臣(7)第5463号 |
||
0800-919-0723
営業時間:10:00~18:00 / 定休日:水曜日
| 所在地 | 物件の住所を表示。(詳細住所は表示していない場合もある) | ||
|---|---|---|---|
| 交通 | 物件(部屋)の沿線駅・バス停を表示。(複数駅・バス停の利用が可能な場合は最大3件まで) | ||
| 間取り/詳細 | 数字は居室数を表示。LDKはそれぞれ「リビング」「ダイニング」「キッチン」、S(納戸)とは「納戸」「サービスルーム」「マルチルーム」「フリールーム」など建築基準法第28条に適合していないため、居室と認められない納戸その他の部分を表す。 | ||
| 価格 | 販売されている住戸の価格を表示。仲介手数料は含まない。 | ||
| 管理費 | 共同住宅の設備その他共用部分の維持および管理をするために必要な費用を表示。 | ||
| 修繕積立金 | 共用部分の修繕のために積立てる金額を表示。 | ||

【居間・リビング】