新築一戸建住宅 分譲
「利回り」は、当該不動産の1年間の予定賃料収入の不動産取得対価に対する割合であり、公租公課その他当該物件を維持するために必要な費用の控除前のものです。
また、予定賃料収入が確実に得られる事を保証するものではありません。

事前に必ず予約してください
◆現地案内会&個別相談会 開催中◆
事前予約でゆっくり見学可。平日対応、資金計画の無料相談も充実。
転職したて、勤続年数が短い方、自営業の方等でも住宅ローン相談可能。
住まい選びを総合サポートします。
0800-919-0723
営業時間:10:00~18:00 / 定休日:水曜日
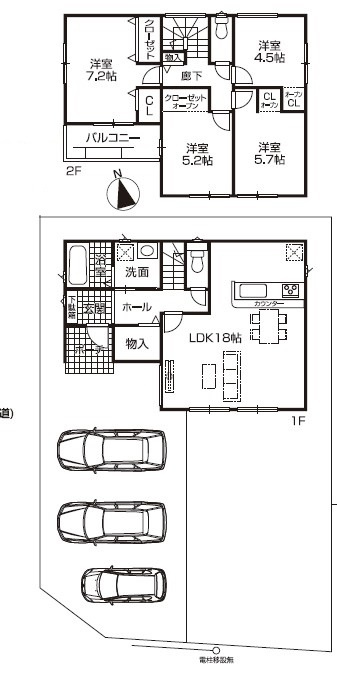
販売中 現地見学会 1号棟
|
情報公開日:2026年1月12日 / 次回更新予定日:2026年1月26日 |
|
| 価格 | 2,799 万円 |
|---|---|
| 間取り | 4LDK |
| 築年月 | 2026年 3月予定 |
| 階数 | 2階建 |
| 建物面積/坪数 | 98.82㎡/29.89坪 |
| 土地面積/坪数 | 167.98㎡/50.81坪 | 私道負担面積 |
| 土地の権利形態 | |
| 引渡し | 相談 |
| 取引態様 | 仲介 |
| 間取り詳細 |
LDK 18.0帖 1室 洋室 7.2帖 1室 洋室 5.7帖 1室 洋室 5.2帖 1室 洋室 4.5帖 1室 |
建設住宅性能評価書付 / オープンハウス / システムキッチン / 対面式キッチン / 浴室乾燥機 / トイレ2ヶ所 / 浴室1坪以上 / 複層ガラス /
有 、 空き台数:3台
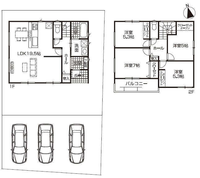
販売中 2号棟
|
情報公開日:2026年1月12日 / 次回更新予定日:2026年1月26日 |
|
| 価格 | 2,699 万円 |
|---|---|
| 間取り | 4LDK |
| 築年月 | 2026年 3月予定 |
| 階数 | 2階建 |
| 建物面積/坪数 | 99.22㎡/30.01坪 |
| 土地面積/坪数 | 167.36㎡/50.62坪 | 私道負担面積 |
| 土地の権利形態 | |
| 引渡し | 相談 |
| 取引態様 | 仲介 |
| 間取り詳細 |
LDK 19.5帖 1室 洋室 7.0帖 1室 洋室 5.3帖 2室 洋室 5.0帖 1室 |
建設住宅性能評価書付 / システムキッチン / 対面式キッチン / 浴室乾燥機 / トイレ2ヶ所 / 浴室1坪以上 / 複層ガラス /
有 、 空き台数:3台
※地図上の物件位置は近隣に物件が所在することを表すものであり、実際の物件所在地とは異なる場合がございます。
0800-919-0723
営業時間:10:00~18:00 / 定休日:水曜日
| 所在地 | 愛知県稲沢市田代1丁目 | ||
|---|---|---|---|
| 交通 |
名鉄津島線 「青塚」駅
徒歩21分 名鉄津島線 「勝幡」駅 徒歩28分 名鉄津島線 「木田」駅 徒歩43分 |
||
| 価格 | 2,699万円 ・ 2,799万円 | 間取り | 4LDK |
| 総戸数 | 2戸 | 販売戸数 | 2戸 |
| 建物構造 | 木造 | ||
| 建ぺい率/容積率 | 60%/ 200% | 土地権利 | 所有権 |
| 地目 | 宅地 | 地勢 | |
| 土地の権利形態 | |||
| 都市計画 | 市街化調整区域 | 用途地域 | 指定なし |
| その他法令上の制限 | |||
| 国土法届出 | 不要 | ||
| 設備条件 | 公共下水 / 公営水道 / 都市ガス | ||
| 備考 | |||
| 周辺の学校 | |||
| 建築確認番号 | 第R07確認建築愛建住セ723561号 | 物件番号 | 99904022 |
| 取扱い会社 |
株式会社ブルーボックス 〒492-8145 愛知県稲沢市正明寺2丁目16-4 国土交通大臣(7)第5463号 |
||
0800-919-0723
営業時間:10:00~18:00 / 定休日:水曜日
| 所在地 | 物件の住所を表示。(詳細住所は表示していない場合もある) | ||
|---|---|---|---|
| 交通 | 物件(部屋)の沿線駅・バス停を表示。(複数駅・バス停の利用が可能な場合は最大3件まで) | ||
| 間取り/詳細 | 数字は居室数を表示。LDKはそれぞれ「リビング」「ダイニング」「キッチン」、S(納戸)とは「納戸」「サービスルーム」「マルチルーム」「フリールーム」など建築基準法第28条に適合していないため、居室と認められない納戸その他の部分を表す。 | ||
| 価格 | 販売されている住戸の価格を表示。仲介手数料は含まない。 | ||
| 管理費 | 共同住宅の設備その他共用部分の維持および管理をするために必要な費用を表示。 | ||
| 修繕積立金 | 共用部分の修繕のために積立てる金額を表示。 | ||

新築一戸建住宅
| 価格 | 2,290 万円 ~ 2,390 万円 | ||
|---|---|---|---|
| 間取り | 4LDK | 築年月(築年数) | 2025年 8月 (新築) |
| 建物面積 | 100.20㎡ ~ 101.85㎡ | 土地面積 | 221.64㎡ ~ 278.63㎡ |
| 住所 | 愛知県稲沢市祖父江町祖父江江東 | ||
| 交通 |
名鉄尾西線「山崎」駅 徒歩48分 名鉄尾西線「玉野」駅 徒歩49分 名鉄尾西線「森上」駅 徒歩57分 |
||
【間取り】 1号棟